Última actualización del barrio: 2016

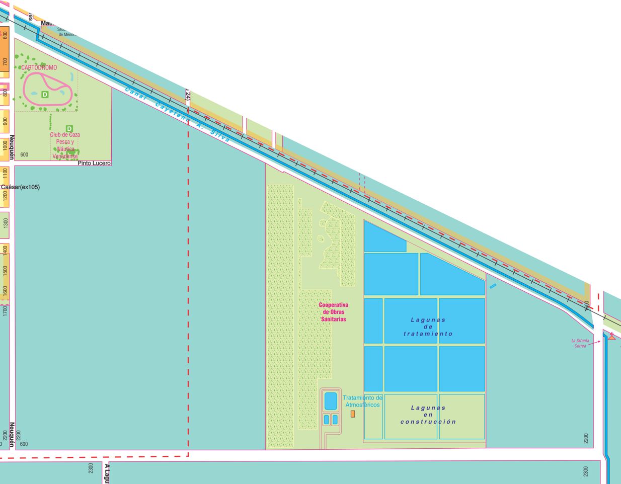
Zona Rural - Alrededores Planta de Cooperativa de Obras Sanitarias de Venado Tuerto

Club de Caza Pesca y Náutica Venadense-Pinto Lucero S/N